jueves, 25 de abril de 2013

VIVIENDA EN MUKO, FUJIWARAMURO ARQUITECTOS

VIVIENDA EN MUKO DISEÑADA POR FUJIWARAMURO ARQUITECTOS 

Hoy os hablo de una vivienda en Japón, más concretamente en Muko.
Se trata de una vivienda de aproximadamente 100 m2 de superficie, con un cerramiento exterior de vidrio y en perpendicular a este se encuentran los elementos verticales que controlan la cantidad de luz del sol que entra en los espacios interiores. De esta forma el movimiento  del sol se pueden sentir durante todo el año en la vivienda.


La luz que proviene del este golpea los elementos verticales tipo persiana antes de entrar en la casa y profundiza en el interior.
La luz del sur es la que entra más directamente a la vivienda, en cambio cuando la luz proviene de otras direcciones entra más difuminada por la reflexión.


La planta baja de la vivienda se distribuye en un único espacio en forma de abanico. En esta planta se encuentran la cocina, el comedor, el salón y el dormitorio principal.



El mobiliario de la vivienda y el suelo son en color claro, lo que aporta luminosidad a los espacios interiores.



En la planta primera encontramos la habitación de los niños y un baño a media altura de ésta. Desde la planta primera puedes asomarte a la planta baja, ya que la zona más cercana a la fachada, de elementos verticales, se deja libre de forjado. Por tanto la planta baja adquiere doble altura en este espacio.



El estilo minimalista japonés en el mobiliario resulta siempre muy elegante y el bonito columpio interior, rompe un poco la seriedad del ambiente, dándole un toque desenfadado.








martes, 16 de abril de 2013

CAPILLA EN EL BOSQUE Y CAPILLA DEL ROSARIO

CAPILLA EN EL BOSQUE DE LOS ARQUITECTOS HIRONAKA OGAWA & ASOCIADOS Y CAPILLA DEL ROSARIO DEL PINTOR MATISSE


Hoy os hablo de dos capillas muy interesantes. En las dos se juega con la luz y sus interiores son muy puros, dando sensación de serenidad y paz al visitante.
Una de ellas es la Capilla del Bosque, se encuentra en Japón y fue realizada por los arquitectos Hironaka Ogawa y asociados. La capilla se encuentra rodeada de árboles y parece estar flotando en el aire.





Los arquitectos tomaron los árboles del jardín como un motivo de diseño y propusieron una capilla con pilares de hierro que siguen la forma de un bosque al azar.
Se reunieron ocho escuadras compuestas por cuatro hierros regulares de 90 x 90 x 7 mm y cuatro de 75 x 75 x 6 mm para crear una columna en forma de cruz. Los pilares terminan en curvas para extenderse sobre las personas como las ramas de un árbol.








Los pilares se van ubicando estratégicamente en el espacio y se van girando para dar la apariencia aleatoria del bosque. Las distancias y las formas de las ramas de los pilares generan un tenso silencio, apropiado para una capilla. 




La segunda capilla es la capilla del Rosario.
A Matisse le encargaron la decoración de esta capilla en Vence, cerca de Cannes.
En el diseño de la capilla se produce una búsqueda de equilibrio entre los colores y la línea, en una arquitectura de cal que recuerda al hábitat del mediterráneo.



El techo del campanario es azul y blanco, las vidrieras están coloreadas y realizadas a partir de aguadas recortadas.
En el interior encontramos tres frescos sobre fondo blanco, representando el Vía Crucis, la Virgen y el niño, y el Santo Dominico. Los dibujos de los frescos se hicieron en pocas horas, ya  que previamente habían sido estudiados en detalle por Matisse.




Matisse afirmó: "esta obra ha supuesto cuatro años de trabajo continuado y es el resultado de toda mi vida activa". Matisse consideraba esta capilla como su gran obra maestra.
La capilla presenta una austeridad asombrosa. Matisse también diseñó el altar de piedra, una cruz de bronce, coloridas vestiduras y la puerta tallada del confesionario.




martes, 9 de abril de 2013

URBAN TOWNHOUSE EN NUEVA YORK

URBAN TOWNHOUSE EN NUEVA YORK



Hola chic@s! qué mejor que empezar el día con este post, un ejemplo de casa que como tantas otras puede rehabilitarse en los centros de nuestras ciudades. 
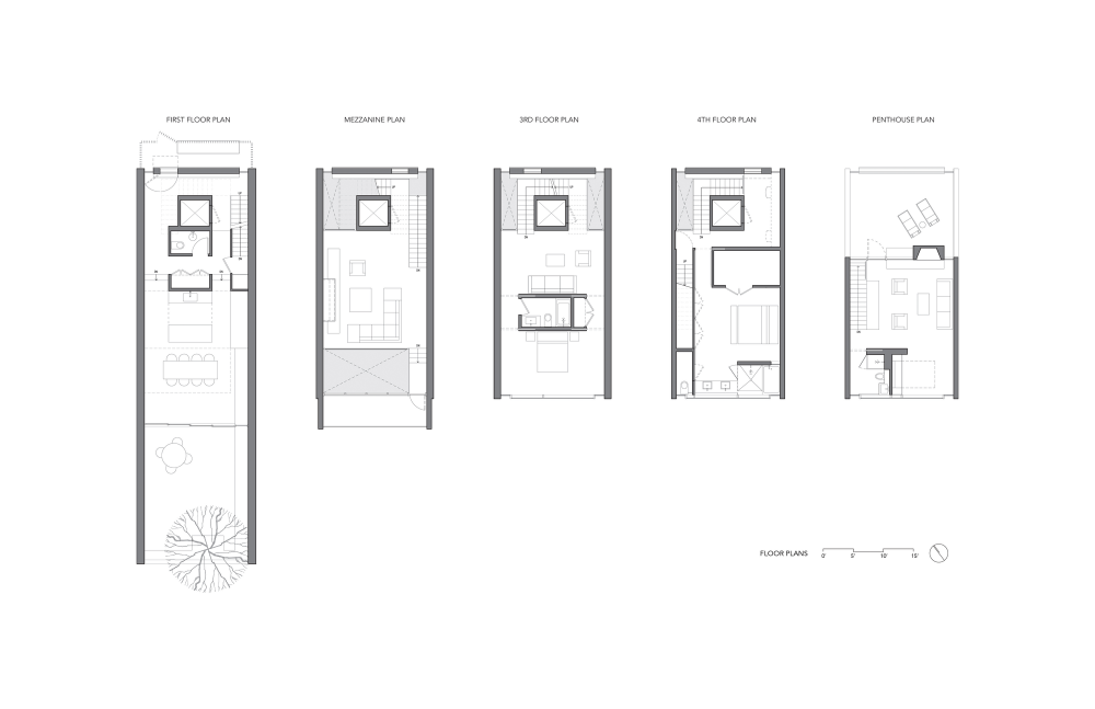
Esta semana os hablo de una casa en una parcela muy singular. Ordenar los espacios en esta casa es muy complicado, debido a la gran longitud de la parcela que contrasta con su escasa anchura.
Los arquitectos GLUCK diseñaron esta casa en Nueva York. Se encuentra en una manzana de Manhattan. La parcela en la que se haya es rectangular y estrecha. Los dos lados de la parcela de menor longitud dan uno a un patio de manzana y el otro a la calle exterior.







Los arquitectos reconfiguraron la organización y la fachada de la casa. Los espacios abiertos de la casa encuentran privacidad desde la calle detrás de una biblioteca de cuatro pisos de altura.
Los clientes querían que los espacios interiores fuesen amplios, llenos de luz y que a su vez mantuvieran la privacidad con respecto a la calle.





El núcleo de escalera y ascensor se construyó en la fachada de la calle. De esta manera consiguen que los espacios funcionen fluidamente, sin perder anchura de planta en las estancias. 








Las esta
ncias que encontramos son: una cocina-comedor con doble altura, sala de estar, oficinas y dormitorios privados con zonas de estar.







La fachada principal está recubierta por una pantalla metálica con aberturas en forma de ladrillo. Durante el día se ve como una masa plana con textura y rompiendo este material dos franjas verticales de vidrio que se encuentran a ambos lados de la fachada. 

Al caer la tarde, las ventanas de hendidura horizontal y las verticales animan la fachada con su luz.



La fachada posterior, la que da al patio de manzana, es un muro cortina de vidrio. Con lo que todos los espacios interiores son bañados de luz.
Los espacios públicos de la casa (sala de estar, comedor y cocina) están unidos por una entreplanta luminosa con vistas al patio trasero. 
Los arquitectos extienden los materiales (ladrillo, piedra y madera) de la planta baja hacia el jardín, consiguiendo dar una mayor profundidad al espacio.
El vidrio grabado en las tres plantas superiores da privacidad a los dormitorios y baños. Además entrega una luz difusa que es más brillante que el cristal claro. 





Otro ejemplo de este tipo de casas en parcelas de similares características las encontramos en Copenhague. Las casas son de obra nueva y muy versátiles en apariencia, como la arquitectura vernácula de Copenhague en 1900. Estas viviendas no se encuentran en el centro de la ciudad pero es un claro ejemplo de lo que se puede llegar a conseguir en ciertos espacios de los centros antiguos de nuestras ciudades.






En Amsterdam encontramos otros ejemplo de parcelas alargadas y estrechas.
Los arquitectos crean un entorno único con viviendas dispuestas en planos diferentes, patios traseros o azoteas.